电动矩形百叶式调节蝶阀产品概述:
电动矩形百叶式调节蝶阀采用钢板焊接制造,本阀可配备多种驱动装置如手动装置、蜗轮传动装置、气动装置、电动装置。通风蝶阀用于治金、师化、电力、建材、矿山等工业管线对介质气体气控制或调节作用。
产品工作原理和用途:
低端工业电动矩形百叶式调节蝶阀和民用电动矩形百叶式调节蝶阀市场的主要产品为铸铁电动矩形百叶式调节蝶阀和青铜电动矩形百叶式调节蝶阀,面向这一市场的电动矩形百叶式调节蝶阀产品需求量大,技术含量低,进入门槛不高,充斥了大量的家庭式、作坊式的小电动矩形百叶式调节蝶阀生产企业,市场竞争程度高,利润水平较低。目前,国内90%以上的电动矩形百叶式调节蝶阀出口企业属于零件生产商或贴牌生产商,其中,相当多的企业处于低端工业电动矩形百叶式调节蝶阀和民用电动矩形百叶式调节蝶阀领域。
中端工业电动矩形百叶式调节蝶阀市场的主要产品为使用环境较为宽松的工业电动矩形百叶式调节蝶阀,一般为碳钢或不锈钢电动矩形百叶式调节蝶阀,面向这一市场的电动矩形百叶式调节蝶阀产品市场需求量大,需要达到工业级的质量要求,技术含量较高,且终端客户普遍设定合格供应商资格,因此存在一定的行业进入障碍,竞争水平低于低端工业电动矩形百叶式调节蝶阀和民用电动矩形百叶式调节蝶阀市场,利润水平较高。我国电动矩形百叶式调节蝶阀行业的一些大型企业,由于进入国际市场较早,在生产技术和生产工艺方面较为成熟,并且与很多国际级的客户建立起了较为稳定的合作关系,已经在中端电动矩形百叶式调节蝶阀市场中占有较为重要的地位。
高端工业电动矩形百叶式调节蝶阀市场的主要产品为使用环境非常严苛(如超高温、超低温、超高压、真空、有核等极端环境)的高端工业电动矩形百叶式调节蝶阀,多为特殊材料电动矩形百叶式调节蝶阀。高端工业电动矩形百叶式调节蝶阀市场是由大量的细分市场组成,面向这些市场的电动矩形百叶式调节蝶阀产品,质量要求严格,技术含量很高,市场多为垄断竞争的局面,利润水平很高,市场主要由欧洲、美国、日本的国际知名企业占据。但是随着技术水平、工艺水平以及材料技术的不断提高,目前国内以纽威电动矩形百叶式调节蝶阀为代表的行业龙头企业已经逐步渗透到高端电动矩形百叶式调节蝶阀市场领域。
产品结构特点:
1、蝶板采用百叶多轴体结构液体均匀启闭力矩小动作灵敏性能可靠。
2、具有结构尺寸短重量轻安装方便等特点。
3、阀体上设置油密封挡圈密封副之间无可见间隙泄漏率小。
4、蝶板与阀体间的膨胀间隙大能有效防止因热涨冷缩造成的卡死现象。
主要技术参数
公称压力PN | 0.005MPa |
适用温度 | -30~350℃ |
适用介质 | 粉尘、含尘气体 |
泄漏量 | ≤3% |
阀门启闭时间 | 25秒 |
输入信号(直流) | Ⅱ型0~10mA,Ⅲ型4~20mA |
输入通道 | 3个 |
输入电阻 | Ⅱ型200Ω,Ⅲ型250Ω |
电源电压 | 220V±20V,50HZ |
介质流速 | ≤25m/s |
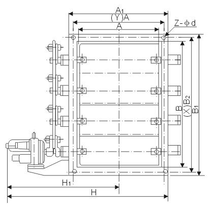
产品结构图:
主要外形连接尺寸 
A×B | A1×B1 | A2×B2 | L | L1 | H1 | H | b | Z-Фd | X | Y | 输线 | 执行器 | Wt/Kgs |
320×180 | 375×105 | 400×240 | 180 | 245 | 580 | 735 | 8 | 16-14 | 5 | 3 | 2 | DKJ-210 | 184 |
320×250 | 375×395 | 400×330 | 180 | 245 | 625 | 825 | 8 | 16-14 | 5 | 3 | 2 | DKJ-210 | 194 |
400×200 | 455×255 | 500×330 | 200 | 245 | 610 | 805 | 8 | 16-18 | 5 | 3 | 2 | DKJ-210 | 215 |
400×320 | 455×375 | 500×420 | 200 | 245 | 870 | 915 | 8 | 16-18 | 5 | 3 | 2 | DKJ-210 | 263 |
500×200 | 555×255 | 600×300 | 220 | 245 | 610 | 805 | 8 | 16-18 | 5 | 3 | 3 | DKJ-210 | 272 |
500×400 | 555×455 | 600×500 | 220 | 245 | 370 | 915 | 8 | 20-18 | 5 | 5 | 3 | DKJ-210 | 292 |
630×320 | 685×375 | 730×420 | 220 | 245 | 610 | 805 | 10 | 20-18 | 7 | 3 | 3 | DKJ-210 | 322 |
630×400 | 685×455 | 730×500 | 220 | 245 | 710 | 995 | 10 | 24-18 | 7 | 5 | 3 | DKJ-210 | 354 |
800×400 | 855×455 | 900×500 | 240 | 300 | 670 | 945 | 10 | 24-18 | 7 | 5 | 4 | DKJ-310 | 443 |
800×630 | 855×685 | 900×730 | 240 | 300 | 710 | 995 | 10 | 28-18 | 7 | 7 | 4 | DKJ-310 | 590 |
1000×500 | 1070×570 | 1130×830 | 260 | 300 | 790 | 1075 | 10 | 24-23 | 7 | 5 | 4 | DKJ-310 | 640 |
1000×800 | 1070×870 | 1130×930 | 260 | 300 | 905 | 1270 | 10 | 28-23 | 7 | 7 | 4 | DKJ-310 | 770 |
1250×630 | 1320×700 | 1380×760 | 280 | 300 | 1005 | 1505 | 10 | 32-23 | 9 | 7 | 5 | DKJ-310 | 790 |
1250×1000 | 1320×1070 | 1380×1130 | 280 | 300 | 1105 | 1705 | 10 | 32-23 | 9 | 7 | 5 | DKJ-310 | 920 |
1400×800 | 1470×870 | 1530×930 | 300 | 385 | 1075 | 1575 | 10 | 36-23 | 11 | 7 | 5 | DKJ-410 | 940 |
1400×1250 | 1470×1320 | 1530×1380 | 300 | 385 | 1300 | 2025 | 10 | 40-23 | 11 | 9 | 5 | DKJ-410 | 1240 |
1600×1000 | 1670×1070 | 1730×1130 | 320 | 385 | 1175 | 1775 | 10 | 36-23 | 11 | 7 | 5 | DKJ-410 | 1540 |
1600×1250 | 1670×1320 | 1730×1380 | 320 | 385 | 1300 | 2025 | 10 | 40-23 | 11 | 9 | 5 | DKJ-410 | 1680 |
1800×1250 | 1870×1320 | 1930×1380 | 340 | 420 | 1450 | 2175 | 10 | 44-23 | 13 | 9 | 6 | DKJ-510 | 1846 |
1800×1400 | 1870×1470 | 1930×1530 | 340 | 420 | 1525 | 2325 | 10 | 48-23 | 13 | 11 | 6 | DKJ-510 | 1953 |
2000×1250 | 2070×1320 | 2130×1380 | 360 | 420 | 1450 | 2175 | 10 | 48-23 | 15 | 9 | 6 | DKJ-510 | 2170 |
2000×1800 | 2070×1670 | 2130×1730 | 360 | 420 | 1620 | 2520 | 12 | 52-23 | 15 | 11 | 6 | DKJ-510 | 2392 |
2500×1800 | 2570×1870 | 2630×1730 | 420 | 450 | 1695 | 2595 | 12 | 56-23 | 17 | 11 | 8 | DKJ-610A | 2740 |
2500×2000 | 2570×2070 | 2630×2130 | 420 | 450 | 1895 | 2995 | 12 | 64-23 | 17 | 15 | 8 | DKJ-610A | 2801 |
2800×2500 | 2870×2570 | 2930×2630 | 440 | 450 | 2145 | 3195 | 12 | 72-23 | 19 | 17 | 8 | DKJ-610A | 3118 |
3200×2800 | 3270×2870 | 3330×2930 | 480 | 480 | 2325 | 3825 | 12 | 80-23 | 21 | 19 | 10 | DKJ-610 | 3535 |
3600×3200 | 3670×3270 | 3730×3330 | 520 | 480 | 2525 | 4225 | 12 | 88-23 | 23 | 21 | 10 | DKJ-610 | 4018 |
4000×3600 | 4070×4670 | 4130×4730 | 560 | 480 | 2725 | 4825 | 12 | 100-23 | 27 | 23 | 10 | DKJ-610 | 4532 |
上海沪通阀门科技有限公司销售产品电站阀:闸阀、球阀、蝶阀、截止阀、止回阀、平衡阀、调节阀、安全阀、减压阀、疏水阀、过滤器、隔膜阀、针型阀、平板闸阀、刀型闸阀、电动闸阀、气动闸阀、电动球阀、气动球阀、电动蝶阀、气动蝶阀、电动二通阀、高温阀门、自密封闸阀,减温减压装置,铝厂专用阀,固定式球阀,液控蝶阀,超高温蝶阀、工业阀门、楼宇自控阀、水力控制阀、大口径阀门、不锈钢阀门等国标、日标、美标的阀门。畅销国内市场。
维修保养:
1. 沪通阀门应存放在干燥,通风的室内,沪通阀门通道两端应堵塞。
2. 长期存放的沪通阀门应定期检查,清除污物。应特别注意密封面的清洁 防密封面的损坏。
3. 安装前应仔细核对沪通阀门标志是否与使用要求相符。
4. 安装前应检查沪通阀门内腔和密封面,如有污垢,应使用清洁布擦拭干净。
5. 安装前检查填料是否压紧,应确保填料的密封性,同时不应妨碍阀杆的转动。
6. 安装后系统或管路试压时,沪通阀门应处于全开位置。
7. 使用中,应将闸板全开或关闭,不应将闸板部分开启做调节流量用。
8. 使用时,应经常给阀杆梯形螺纹注入润滑剂。
9. 手动沪通阀门,在开启或关闭操作时,应使用手轮开、关,不得借助辅助杠杆或其它工具。
10. 沪通阀门使用后应定期检查,检查密封面、阀杆等有无磨损以及垫片、填料。若损坏失效,应及时修理或更换。